Brutální galerie
Soutěžní návrh na rozšíření Gočárovy galerie v Automatických mlýnech.
Soutěž
2024
Architektura mimo velká centra je v posledních letech v České republice silné téma. Mít ikonu, i když lokálního měřítka, je pro fungování sídel mimo velká krajská města zásadní. Místním obyvatelům nejen funkčně slouží, ale pozitivně přispívá i k jejich vítané identifikaci s místem a pozitivnímu vztahu doprovázenému hrdou sounáležitostí.
Počin rehabilitace areálu Automatických mlýnů je nevídaným a vítaným gestem, které si zaslouží obdiv. Rozšíření Gočárovy galerie je pak logickým krokem k plnohodnotnému fungování kulturní instituce, která obstojí i v evropském prostoru a funkčně i esteticky podpoří celý areál. Brutální galerie se má stát vhodným doplněním areálu, funkčním prvkem galerie a a drobným betonovým palácem na břehu Chrudimky.
Budova moučného sila stojí jako další článek v řadě pokorně za Gočárovou ikonou. Brutální galerie si neklade za cíl hmotově ani duchem převyšovat Automatické mlýny, chce je stejně, jako kdysi architekt Karel Řepa vhodně a současným jazykem doplnit a vytvořit funkční prostor pro zázemí galerie a výstavní sály.
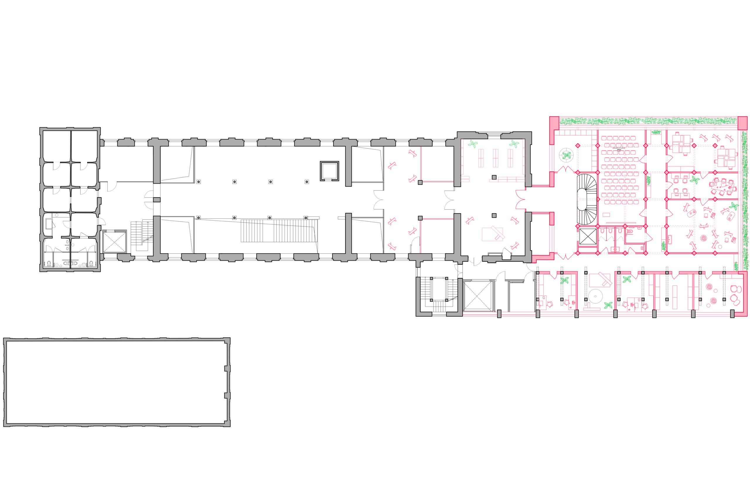
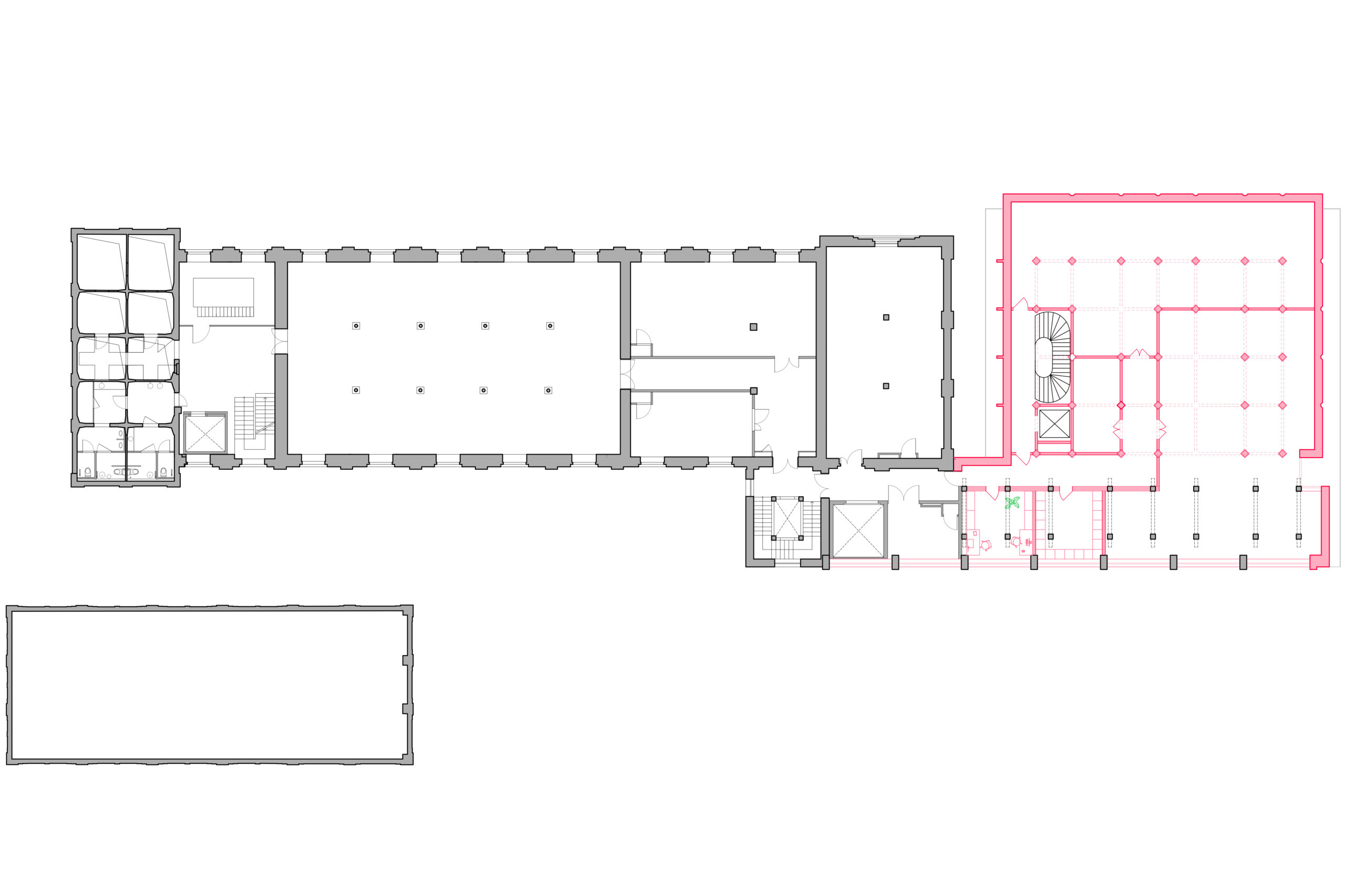
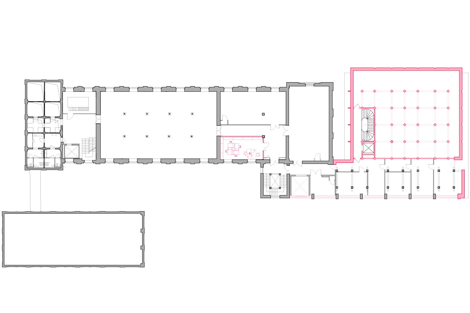
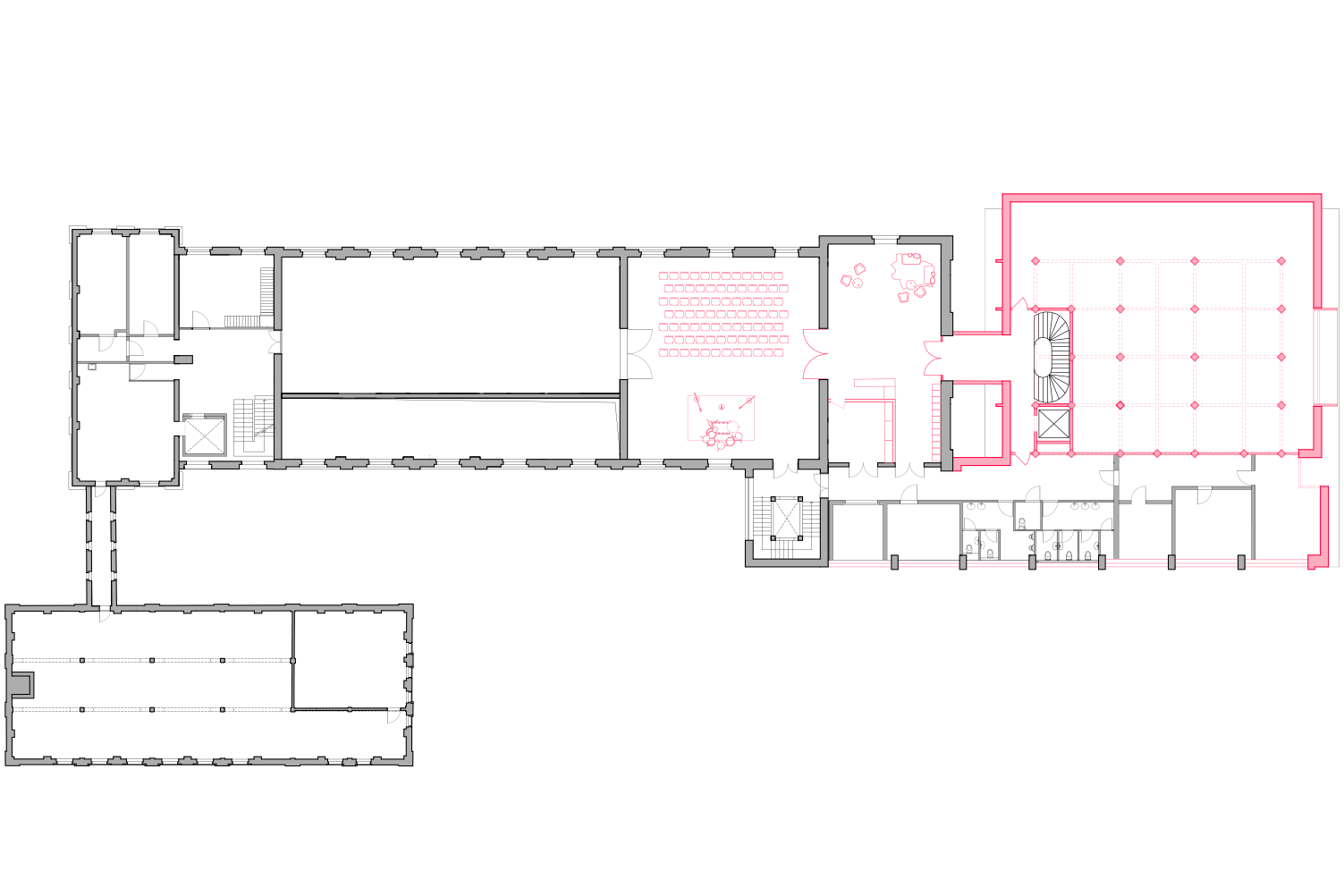
Zvolená cesta přístupu k moučnému silu, tedy demolice části objektu s vysokými betonovými píšťalami, rekonstrukce východní části objektu s moučným tobogánem a na ni navazující novostavba má vhodně propojit a vytvořit nové časové i prostorové vrstvy a vazby.
Brutální galerie na východní trakt původního moučného sila prostorově bezprostředně navazuje, od původní Gočárovy fasády ale ustupuje, dává na ni nahlédnout a prostorově vymezuje svou svébytnou existenci. Ve své hmotě jasně člení jednotlivá funkční patra a do fasády i půdorysů nechává jasně propisovat vzpomínku na jednotlivé betonové násypky pardubické mouky.
Koncepčním těžištěm návrhu je tabulové sklo s dichroickým efektem reagující na světlo. Vytváří dojem z neustálého pohybu, fasáda se díky němu mění každý den i roční dobu. Pět ze šesti pojednávaných ploch je rozděleno v přísně ortogonálním rastru. Jednotlivé tabule skla jsou vůči sobě systematicky nakloněné, čímž vytvářejí barevný dialog stínohry nejen samy mezi sebou, ale i s bezprostředním okolím. Největší z ploch zůstává zdánlivě prázdná, v průběhu času ji ale zaplňuje množství barevných odrazů trojúhelníkových skel kreslících pastelový obraz původních jizerskohorských jedlí tyčících se nad tolik typickými rašeliništi.
Budova Automatických mlýnů se dodnes nedochovala v původní architektem Gočárem navržené podobě. V průběhu let dostala několik přístaveb a prošla různými zásahy. Nejvýraznější přestavbou byla budova moučného sila z přelomu padesátých a šedesátých let od architekta Karla Řepy, která se stala předmětem předkládaného návrhu.
Původní přístavba celkem logicky a vhodně navazuje na Gočárovu hmotu. Funkčně i prostorově se zjednodušeně skládá ze dvou částí – části s vertikálními moučnými sily na severozápadě při řece Chrudimce a z obslužné a manipulační části směřující do nádvoří areálu. Po dlouhých úvahách jsme část moučných vyhodnotily jako sic prostorově zajímavou, ale neschopnou logické a funkční adaptace na potřebnou funkci. Proto jsme se došly k rozhodnutí o částečné demolici objektu, tedy ponechání východního traktu manipulačního traktu a demolici vertikálně členěné betonové částí, kterou nahrazujeme novým objektem.
Ponechání a rekonstrukce výhodní části domu má nejen v udržitelné filozofii výstavby využít již existující a vhodné konstrukce, ale zároveň podpořit novou hmotu v jejím postavení vedle historického domu. Fasáda rekonstruovaného východního traktu je nově sjednocena velkorysými pásovými okny a členěna výraznými betonovými pilastry odkazujícími na vertikální členění původní architektury. Subtilní betonová stříška oddělující parter od ostatních pater je ponechána jako milý detail doby.
Nová část galerie se prostorově vůči Gočárovu domu jasně vymezuje, od jeho původní severní fasády zřetelně odstupuje a vytváří vizuální průrvu. Svá patra horizontálně skládá na sebe. Jejich charakter jasně zrcadlí funkci uvnitř, vertikální prvky jako vzpomínky na prostorové uspořádání moučných sil architekturu propojují a vytvářejí citaci pro areál charakteristického cimbuří. Do půdorysu propsaný duch sil v podobě pootočených sloupů ústí v ploché střeše v jasně čitelné světlíky tvořící signifikantní prvek galerie.
Místo
Pardubice,
Česká republika
Autor
Tereza Šváchová; Barbara Bencová (B² Architecture)
Hrubá podlahová plocha
2 200 m²
Užitná plocha
2 850 m²



























